期刊VIP學術指導 符合學術規范和道德
保障品質 保證專業,沒有后顧之憂
一、工程概述:
揚州市邗江區吉安路南延伸段儀揚河大橋主跨橋梁型式為雙幅變截面預應力混凝土連續箱梁,主跨上部采用掛藍懸臂澆筑施工,主跨下部結構采用門型板式墩身,橋墩承臺厚3m,平面均采用矩形布置,承臺邊長為16.5m*7.7m(橫橋向*順橋向),承臺底埋于河床下,屬低樁承臺,基礎采用群樁基礎,每個承臺下設8根1.8米直徑的鉆孔灌注樁。承臺頂標高:+3.0m,承臺底標高:0.0m,承臺高3.0m,施工水位標高為5.0m,采用單壁鋼套箱圍堰施工。施工時承臺處河床標高為0.7m,,河床土層覆蓋層為淤泥質粉質粘土,平均層厚為10.8m。水流較為平緩。
二、鋼套箱設計:
1、鋼套箱形式的確定 :根據河床的地質情況、承臺埋深及主墩水中承臺的特點,采用單壁無底鋼套箱。
2、鋼套箱的頂、底標高確定:根據儀揚河歷年水文資料及一般以十年一遇的水位作為施工水位,故將施工水位定為▽5.0m,因流速不大,只考慮0.7m安全高度,所以套箱圍堰頂標高定為5.7m;底標高:承臺底標高為0.0m,封底混凝土厚度為1.2m,圍堰吸泥下沉后用蛇皮袋裝粘土鋪平的處理高度約為0.3m,再考慮套箱的底腳切入河床0.8m,則底腳標高應為-2.3m,套箱圍堰總高度為h=5.7-(-2.3)=8.0m。
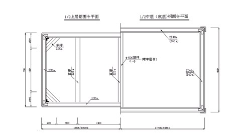
3、承臺平面尺寸:套箱圍堰下沉至設計標高后封底抽水,變水中施工為陸上施工,同時套箱又兼作澆筑承臺的外模。為了保證承臺軸線的精確,故在承臺外緣放出5cm,作為鋼套箱在下沉時的偏差余量,所以在設計鋼套箱圍堰時,平面凈尺寸為:凈(16.5+2×0.05)×(7.7+2×0.05)=16.60×7.8m。套箱圍堰總高8.0m,擬分為上下兩層。底層高3m,上層高5m。
4、鋼套箱結構組成:鋼套箱由正面和側面面板組成,分上、下兩層。上層鋼套箱高5m,正面板尺寸為414*500cm,數量8塊,側面板尺寸為4.04*500cm,數量4塊;下層鋼套箱高3m, 正面板尺寸為414*300cm,數量8塊, 側面板尺寸為4.04*300cm,數量4塊。鋼套箱各層面板采用螺栓連接;鋼套箱由面板、縱肋、橫肋、吊環、連接螺栓、橡膠密封條組成。鋼套箱面板厚度δ=6mm,橫向設[10槽鋼間距為50mm,豎向肋采用I 14a工字鋼,間距500mm, 面板四周設∟140×140×10角鋼與相鄰面板連接,連接螺栓開孔Ф22mm,孔距150mm單排,螺栓M 20*65mm, 并墊以4mm厚的橡膠皮,防止漏水。吊點設在橫橋向的兩側的套箱鋼板上,吊點為δ=20mm鋼板吊環。鋼套箱擬設三層圍令,上層圍令設置標高▽3.5m處為內圍令;中層圍令設置標高▽1.5m處為外圍令,下層圍令設置標高▽0.2m處為外圍令。上、中、下層鋼圍令分別采用I25a、雙拼I40a和I32a工字鋼。為了增加鋼套箱的整體穩定性和強度,套箱內設底層、中層、上層水平支撐,底層支撐采用I32工字鋼位于標高1.0m處,中層支撐采用I32工字鋼,位于標高3.2m處,上層支撐采用I25工字鋼,位于標高4.5m處;鋼支撐端部采用□40×40鋼板焊接于套箱內壁,澆筑砼時將支撐拆除。
5、上層鋼套箱重量為32.73t,下層鋼套箱重量為24.89t,圍令和鋼板重18.14t,每個鋼套箱總重量為75.76t.
三、鋼套箱的制作:
1、鋼套箱制作:鋼套箱制作在岸邊的平地上進行,平整加工焊接平臺。根據鋼套箱的設計圖進行鋼套箱圍堰的焊接、鉆眼、拼裝加工。檢查鋼套箱的各部分尺寸、模板垂直度和對角線方正情況,鋼套箱在試拼裝合格后方可進行下一步工作。
2、鋼套箱運輸:鋼套箱分塊使用50T汽車吊裝運輸運至水中鋼管樁拼裝平臺上。
3、鋼套箱拼裝:由于套箱是分層分塊制作再裝配,所以安裝前需要在拼裝平臺上預先拼裝好,先拼裝底層,拼裝時用吊線陀、直角尺控制套箱的垂直度、直角,套箱的垂直度、直角直接影響與上一層套箱的連接。套箱板塊連接縫之間放置4mm厚的橡膠皮,防止漏水影響日后的抽水施工承臺工序。

四、鋼套箱的下沉:
(1)、利用長臂挖掘機在河中鋼管樁工作平臺上將河床標高挖至標高+0.2左右,且在鉆孔作業中嚴禁將鉆渣棄于河中,在套箱圍堰下沉前復測河床標高,重新整理平整。
(2)鋼套箱采用整體下沉,套箱拼裝好后(一共2層),用Φ14mm的鋼絲繩將套箱同一側上下2層的吊點連接起來,保證吊裝時二層的吊點同時受力。兩臺75T浮吊船同時起吊,安排專人指揮,按預先定出的套箱位置沿導向樁下放,安裝過程中用兩臺全站儀觀測控制。
(3)套箱入水后放慢下降速度,在套箱進入泥層前再次校正套箱軸線位置、垂直度。套箱利用自重下沉停止后,考慮河床存在坡度以及淤泥厚度不均,如果套箱不均勻下沉,套箱垂直度會偏向河床相對較低的一邊,松開吊車鋼絲繩。在套箱上順橋向安放4根32#工字鋼作為支架,在套箱頂面4個角分別安放10t卷揚機,卷揚機鋼絲繩拴在工作平臺腳手樁上,利用卷揚機拔樁產生的向下的壓力(由于腳手樁頂有蓋枕連接同一排的所有腳手樁,卷揚機拔樁時同一排的樁都受力所以不會把鋼絲繩拴住的樁拔起)先將下沉量最小的一邊下壓至和其它邊水平,然后用水準儀測出套箱四角的頂標高及當時水面高程,算出套箱應入水深度,在套箱四角用紅漆標出(紅漆以上一段為套箱露出水面的高度),然后同時開動四個角的卷揚機,將套箱壓至預先設定的頂標高位置(頂標高+5.7m)。吊移卷揚機。用Φ25鋼筋把套箱的四個角焊在鋼管樁上,防止套箱由于水流等外力的作用產生偏移。
(4)在套箱下沉過程中過程中輔以吸泥下沉:用水力沖射空氣吸泥機在水下挖土,水力機械沖土的主要設備包括吸泥器(水力吸泥機或空氣吸泥機)、吸泥管、揚泥管和高壓水管、離心式高壓清水泵、空氣壓縮機等。當圍堰下沉到設計標高時調整圍堰到設計位置,然后測量圍堰內各點的標高,用吸泥機將高處吸平至設計標高,低洼處則用大粒徑碎石回填,沿圍堰外圍四周測量河床標高,保證鋼套箱的底腳切入河床0.8m,鋼套箱埋入深度為1.5m.,防止水流穿孔進入圍堰內。
五、鋼套箱砼封底:
(1)封底混凝土底下碎石墊層采用6-8cm大粒徑碎石處理,厚度50cm,防止澆筑承臺封底混凝土時泥漿或淤泥碎石上翻。封底混凝土底標高-1.2m,封底砼標號采用C25砼,砼坍落度控制在19 ~21cm。封底砼厚1.2m。封底時間控制在6個小時內完成。
(2)在水中平臺支架頂用32#工字鋼和腳手板搭設網格式灌注支架平臺,放置料斗和導管,此平臺作為測量平臺、拆導管平臺、導管提升平臺、灌注平臺。
(3)套箱封底砼采用導管法水下砼封底:鋼吊箱下沉到位后,定位、加固套箱,潛水工水下用鋼絲刷沖刷砼封底段主護筒周圍,以保證封底砼與主護筒之間有良好的粘結力,布設導管以及砼泵送管,導管底口懸空控制在15 -20cm。 由于封底面積過大(16.6*7.8m),所以采用多根導管灌注,導管作用半徑控制在1m~2m之間。
(4)在套箱內垂直放入內徑250mm的鋼制導管,導管底口距底面20cm~30cm,導管頂部裝有砼儲料斗。砼澆筑時,在料斗中儲滿砼,打開料斗封球,此時導管內的水和空氣在砼的重壓下由導管底口排出,瞬間砼通過導管壓向基底,在導管周圍堆成一個平坦的砼圓錐體,將導管底口埋住使水不能從底口進入導管。再灌注的砼通過導管不斷的灌入錐體內。隨著導管的提升,砼在水下攤開和提升,直至達到設計標高.
(5)灌注前精確探明基底各部位的標高,先灌注低洼處的封底砼,以免高處導管內的砼往底處流淌造成導管底口脫空或埋入的厚度過薄,導致導管進水。由于導管之間有樁阻隔,所以在承臺四角和樁基外側靠近承臺套箱部位會形成死角,應在死角位置加密布置導管,先灌注死角處的導管。
(6)使用多根導管灌注,由于砼生產量及運輸限制,各導管不能一次同時灌注,使基底砼在同一水平面上普遍均勻升高的辦法,所以采用分項逐根灌注的辦法。灌注順序為:從底到高逐個進行,從周邊到中間依次灌注,防止基底浮泥及封頂浮漿集中在封底砼周圍。
(7)在灌注封底砼的同時,應隨時測量圍堰內外水頭差,并及時向外排水,使圍堰內外水頭基本保持一致。
六、施工抽水控制
1、抽水:封底混凝土強度達到設計強度后即可進行抽水,周邊應平衡抽水,抽水的布置、速度應保持均衡且應和套箱壁板保持一定距離,同時應密切注視套箱的變形情況和套箱是否漏水。
2、為防止抽水過程中發生意外,保證套箱安全,配備套箱外向套箱內灌水的水泵。一旦發生異常,立即向套箱內灌水,恢復內外平衡。經檢驗處理后,再繼續施工。
結論:單壁鋼套箱圍堰和雙壁圍堰相比具有施工工藝簡單、進度快,鋼材用料少,拼裝加工平臺尺寸小的優點,同時減少了浮吊船的起吊噸位,從而大大地降低了施工成本,加快了施工進度和降低了施工操作難度。由本工程承臺圍堰施工的經驗來講,由于水中承臺在不同工程中存在不同條件的外界因素,施工情況不盡相同,因地制宜,在保證質量的前提下靈活合理的選用施工方法,對改善施工條件,降低施工成本,減少工程投資可以起到非常重要的作用。
參考文獻:人民交通出版社《路橋施工計算手冊》
人民交通出版社《橋涵》(上、下冊)
交通部《公路橋涵施工技術規范》(JTG/T F50-2011)